Контакти
ЦЕНТРАЛЕН ОФИС:
Ул. "Есперанто" № 6А
София, 1225
тел.: +359 2 839-06-68
моб.тел.: +359 885 763-088
моб.тел.: +359 898 612-968
e-mail: [email protected]
2-стаен ул. "Хан Аспарух"; Горубляне, София
Тип имот: 2-стайни
Град / Област: ул. "Хан Аспарух"; кв. Горубляне, гр. София
Метонахождение: Градски недвижими имоти
Спални: 1
Конструкция: Тухла
Отопление: Централно
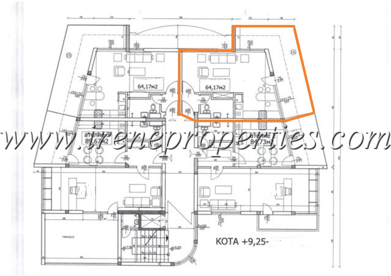
Квадратура: 65.00m²
Цена: 35 800€
Описание:
Предлагаме на вашето внимание 2 стайно в нова луксозна сграда с АКТ 16 ОТ 10.02.2012 г.
Кварталът е с добри комуникационни връзки – градски транспорт, маршрутки, на две спирки от метростанция. На не повече от 5 минути с кола от Бизнес Парк Младост.
Модерна визия, конструкция с много качествени материали и модерно оборудване, безпроблемно паркиране и възможност за закупуване на гараж. Ц
ялата сграда е топло и хидроизолирана с най-нови материали, отговарящи на всички съвременни изисквания. PVC дограма с термомост и шумоизолираща. Луксозни общи части, вход и асансьор с ЧИП карта, видеодомофони, инвалидна платформа (по най-нови изисквания), гаражи достъпни с асансьор.
Газифициран район.
Разпределение: Голямо отворено пространство (прегражда се по желание на клиента) с голяма тераса, която огражда целия апартамент. По план бокс с трапезария и дневна, Б+WC. Възможност за маломерен двустаен преходен.
Две жилища, като едното е Североизточно, а другото Северозападно.
Жилището се намира на трети непоследен етаж и се продава на шпакловка и замазка.
Предлагаме и други жилища в тази сграда.
ЦЕНАТА Е БЕЗ ДДС
Брокер:Мира Петкова-Манлио
00359 899 102 337
[email protected]
























