Контакти
ЦЕНТРАЛЕН ОФИС:
Ул. "Есперанто" № 6А
София, 1225
тел.: +359 2 839-06-68
моб.тел.: +359 885 763-088
моб.тел.: +359 898 612-968
e-mail: [email protected]
МАГАЗИН, КРАСНО СЕЛО, ПАЗАРА, СОФИЯ
Тип имот: Магазини
Град / Област: Ж.к. Красно слео, ПАЗАРА, гр. София
Метонахождение: Градски недвижими имоти
Конструкция: Тухла
Отопление: Централно
Гараж: Паркомясто
Квадратура: 77.02m²
Цена: 73 900€
Описание:
Предлагаме на Вашето внимание магазин, разположен в нова жилищна сграда от седем етажа, построена в съответствие с новите регулаторни стандарти за безопасност и изолация, одобрена и сертифицирана с Разрешение за ползване (акт 16) от 12. 07. 2011 г.
Отлична локация и инфраструктура (медицински центрове, училища, пазар, магазини ...) и отлични транспортни връзки (трамваи, тролейбуси, автобуси).
В непосредствена близост до пазар Красно село.
Помещението се намира в модерна седем етажна сграда, с красиви архитектурни линии, с луксозни общи части, контрол на достъпа, асансьор, централно отопление. Петкамерна PVC дограма термо и звукоизолираща, отлична топло- и хидроизолация на сградата, блиндирани външни врати с тристранно заклюване, MDF интериорни врати, алуминиеви радиатори с термостатни вентили. Използваните материали са с много добро качество.
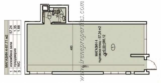
Магазинът има лице към улицата 4,2 метра и лице към подхода за сградата, чиста площ 57.24 кв.м., височина 3 метра, разполага със собствен санитарен възел и би могло да се обособи складово помещение.
Помещението се продава на шпакловка и замазка, като е възможно завършване по желение на клиента.
Подходящо е за офис, аптека, лекарски кабинет, магазин и т.н.
Възможност за закупуване на апартаменти, офиси, гаражи или паркоместа.
Разполагаме и с други жилища тази кооперация
Брокер:Мира Петкова-Манлио
00359 899 102 337
[email protected]














